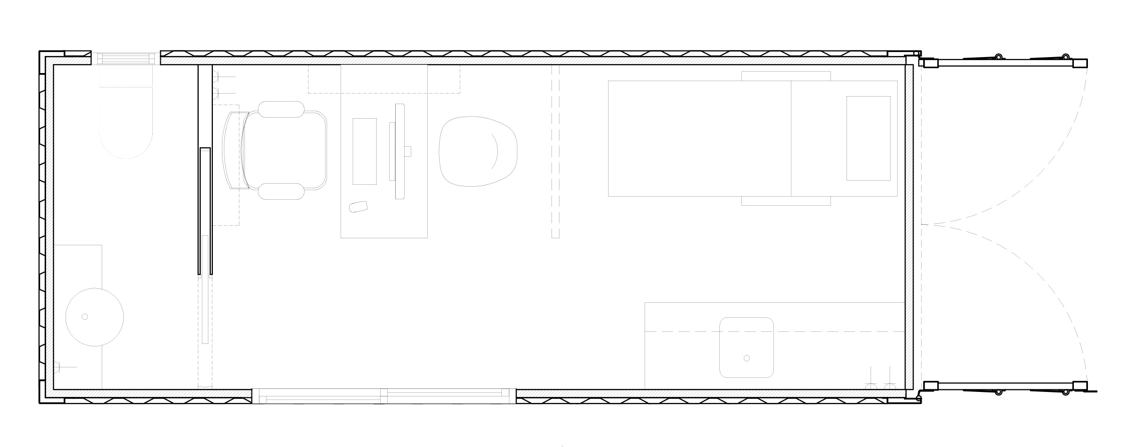
This portable mini clinic is built from a 20FT high cube shipping container (CONEX) with a restroom.

These units are especially designed to be deployed in the case of natural disasters, to remote areas or where medical attention is needed in extreme demand.

Drawings are only referential

Starting at $43,800