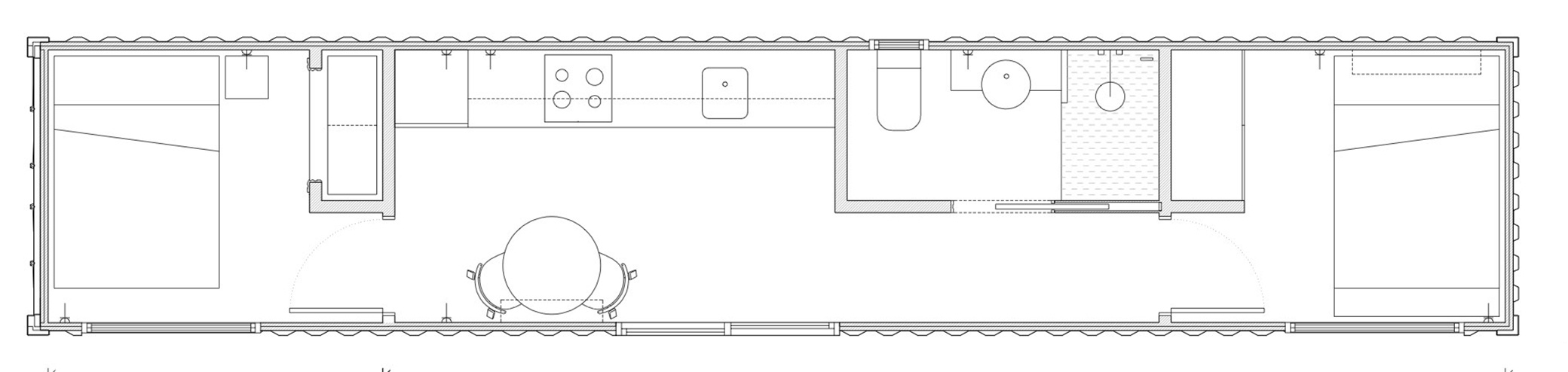
This portable home is built from a used 40FT standard height shipping container (CONEX). This model offers a full bathroom, two bedrooms, full kitchen, and is designed as a portable unit that can be plugged-in as an RV or boat with a power cord, a water hose, and a discharge black water hose.
Power Cord and water hoses not included.


Each shipping container model can be modified to the customer’s needs like additional windows,
doors, exterior color etc.

Drawings are only referential

Starting at $65,500