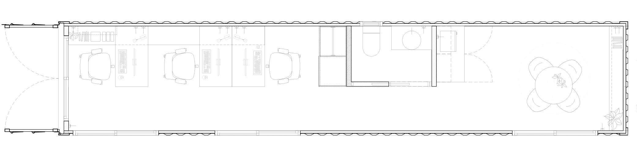
This portable OFFICE is built from a 1 trip 40FT standard height shipping container. This model offers an open office space plus a restroom, and is designed as a portable unit that can be plugged-in as an RV or boat with a power cord, regular garden hose and a 1″ Ø discharge hose. All wastewater is pumped out thru the discharge hose for up to 80′ away from the container.

Each shipping container model can be modified to the customer’s needs like additional windows,
doors, exterior color etc.

Drawings are only referential

Starting at $35,900